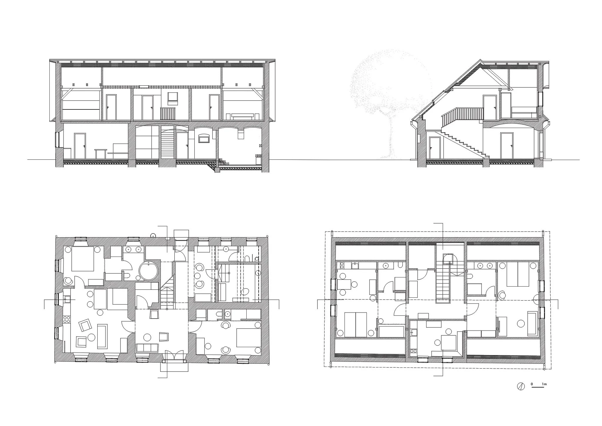
HIŠA 1797

prenova hiše iz leta 1797

arhitektura: Mateja Panter
leto projekta: 2019
leto izvedbe: 2022
površina: 220 m2
lokacija: Dob pri Domžalah
naročnik: zasebni
fotografija: Miran Kambič

nagrada Društva oblikovalcev Slovenije 2022
nagrada Interier leta 2023
BIG SEE Tourism Design Award 2023

TVSLO1, Ambienti, 10. 12. 2022