OBČINA IVANČNA GORICA
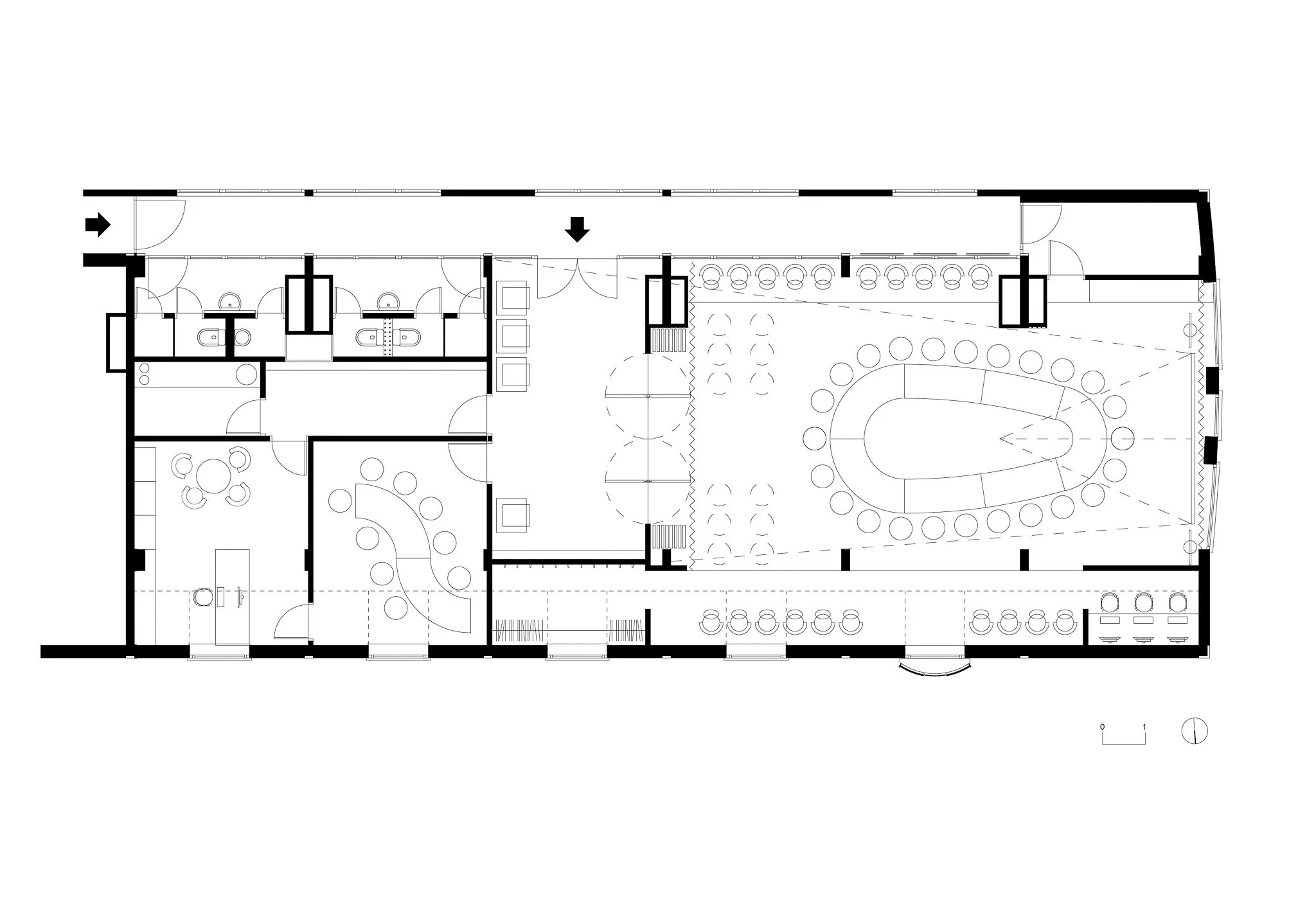
notranja oprema
arhitektura: Mateja Panter za Strukturo
leto projekta: 2006
leto izvedbe: 2006
površina: 250 m2
lokacija: Ivančna Gorica
naročnik: Občina Ivančna Gorica
fotografija: Janez Vlachy
notranja oprema
arhitektura: Mateja Panter za Strukturo
leto projekta: 2006
leto izvedbe: 2006
površina: 250 m2
lokacija: Ivančna Gorica
naročnik: Občina Ivančna Gorica
fotografija: Janez Vlachy