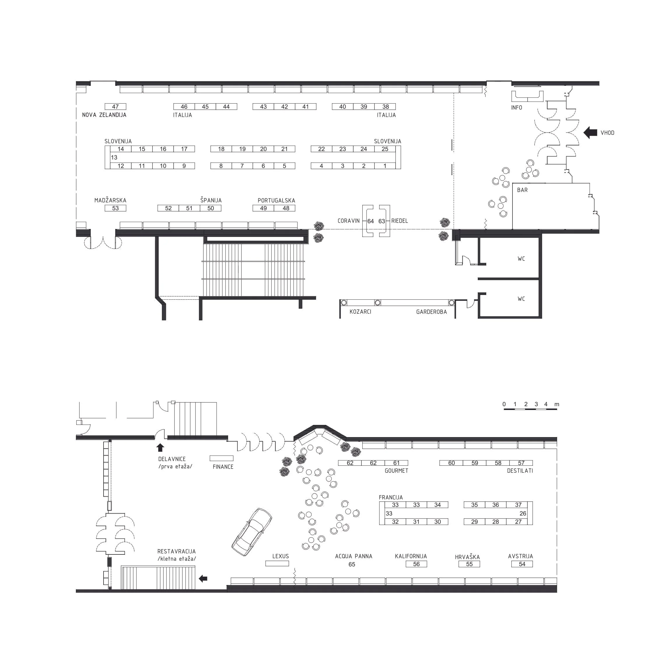
TOP VINO
mednarodni festival vin
koncept in izvedba: Mateja Panter, Franci Kek
datum dogodka: 17. 10. 2016
površina: 1.000 m2
lokacija: Kulturni in kongresni center Cankarjev dom, Ljubljana
naročnik: eVino
fotografija: Dean Dubokovič, Žiga Intihar
mednarodni festival vin
koncept in izvedba: Mateja Panter, Franci Kek
datum dogodka: 17. 10. 2016
površina: 1.000 m2
lokacija: Kulturni in kongresni center Cankarjev dom, Ljubljana
naročnik: eVino
fotografija: Dean Dubokovič, Žiga Intihar