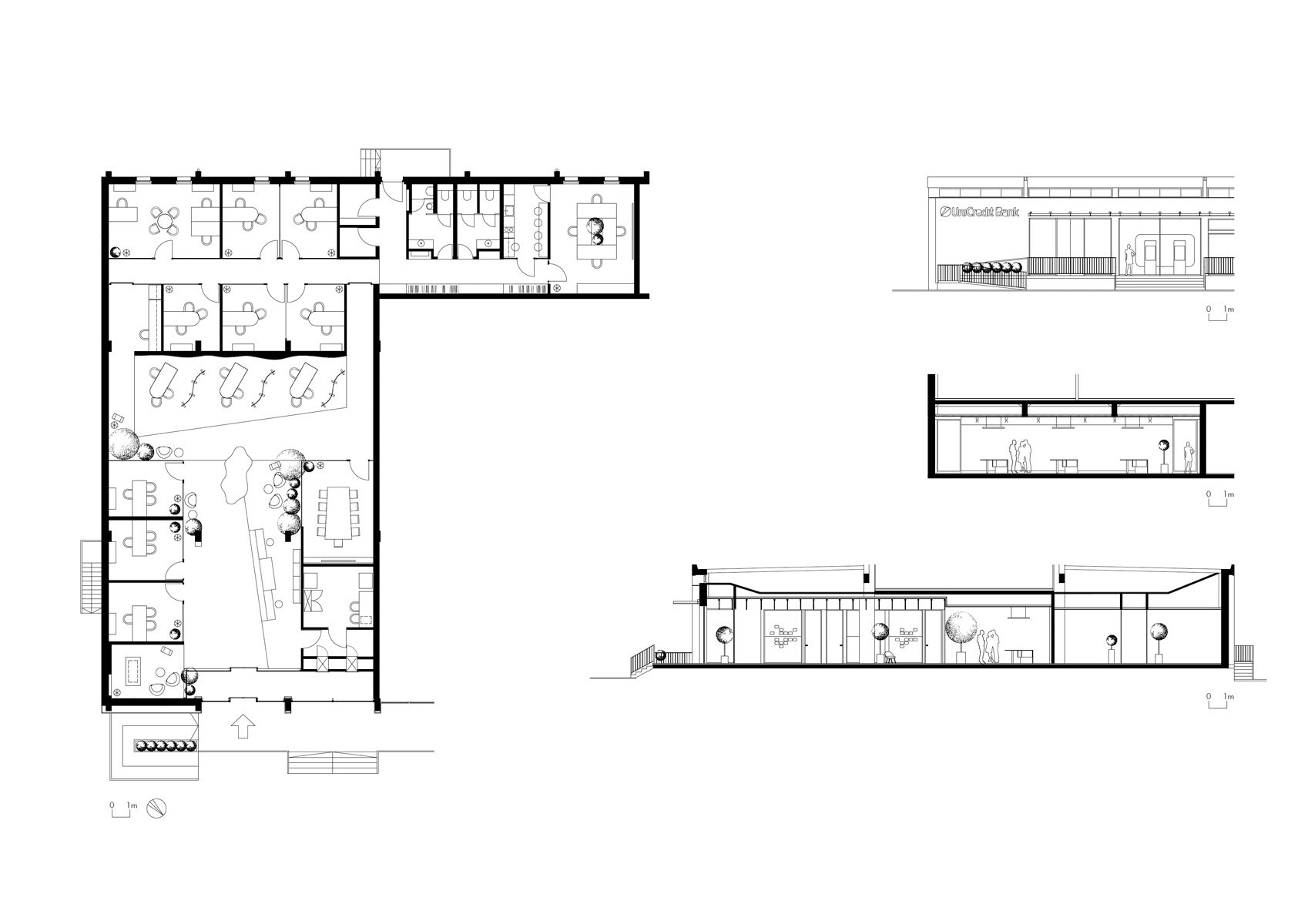
UNICREDIT BANKA - KRANJ
notranja oprema banke
arhitektura: Rok Avbelj in Mateja Panter za Art.a Design
leto projekta: 2024
leto izvedbe: 2025
površina: 493 m2
lokacija: Kranj
naročnik: Unicredit banka Slovenije
fotografija: Miran Kambič
notranja oprema banke
arhitektura: Rok Avbelj in Mateja Panter za Art.a Design
leto projekta: 2024
leto izvedbe: 2025
površina: 493 m2
lokacija: Kranj
naročnik: Unicredit banka Slovenije
fotografija: Miran Kambič