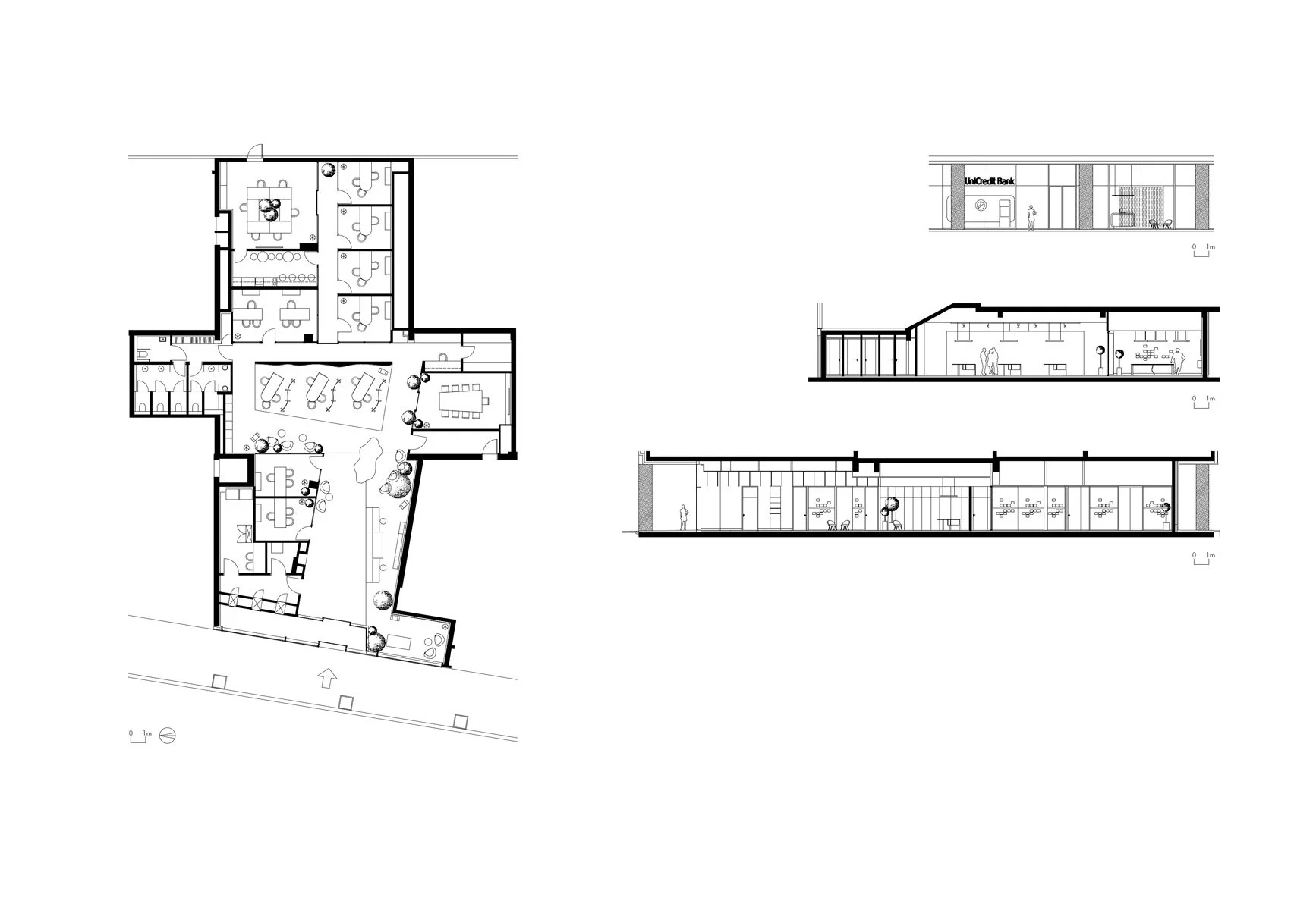
UNICREDIT BANKA - ŠUMI

notranja oprema banke v Šumijevem kvartu

arhitektura: Rok Avbelj in Mateja Panter za Art.a Design
leto projekta: 2023
leto izvedbe: 2024
površina: 457 m2
lokacija: Ljubljana
naročnik: Unicredit banka Slovenije
fotografija: Miran Kambič